A composition of 8 efficiency modules can make an Elementary School. The area can be composed with any amount of Efficiency Module, the design will be according with the necessity that you can have.
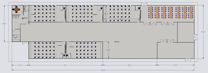
In this option we have: Administrative Area- 5 Classrooms – Cafeteria – Use-Multiple room
5 Classroom. Each Classroom has 720 sq. ft / 67.10 sq. mt
Administrative Area : 720 sq. ft / 67.10 sq. mt
Cafeteria : 720 sq. ft / 67.10 sq. mt
Use- Multiple room : 720 sq. ft / 67.10 sq. mt
Possibility w/ Module Area
Total Area: 11,598.24 sq. ft / 1077.51 sq. mt
Total Area : 720 sq. ft / 67.10 sq. mt
Middle – High Schools Possibility
A composition of 9 efficiency modules can make Middle – High School. The area can be composed with any amount of Efficiency Module, the design will be according with the necessity that you can have. In this option we have: Administrative Area- 5 Classrooms – Cafeteria w/ Kitchen – Use-Multiple room
Total Area: 11,598.24 sq. ft / 1077.51 sq. mt
E l e m e n t a r y S c h o o l s P o s s i b i l i t y
5 Classroom. Each Classroom has 720 sq. ft / 67.10 sq. mt – Cafeteria w / Kitchen : 1440 sq.ft / 134.20 sq.mt
Administrative Area : 720 sq. ft / 67.10 sq. mt – Use- Multiple room : 720 sq. ft / 67.10 sq. mt
Total Area: 15,517.28 sq. ft / 1,441.60 sq. mt







